Сергей Чистяков

Сергей Чистяков

ЗАМЕР ПОМЕЩЕНИЙ ПОД ДИЗАЙН ПРОЕКТ (Волгоград, Волжский, область)
+7 (937) 698 58 98

Гарантирую 100% точный обмер.

Наш метод обмера исключает ошибки: мы не переносим размеры на бумагу, а выстраиваем модель в ноутбуке прямо на объекте, используя точное оборудование Leica. Это позволяет замкнуть контур с миллиметровой точностью — без доработок и повторных выездов.
Результат — идеально точный план, готовый для работы дизайнеров. Ваш проект будет полностью соответствовать реальным размерам и формам помещений.

Примеры работ

обмерный план квартиры

Волгоград, Пархоменко 2

обмерный план квартиры

Волгоград,_Ангарская_9а_секция Б

обмерный план квартиры

Волгоград,_Арбат_Бакинская_6А

обмерный план квартиры

Волгоград,_Великолукская_36

обмерный план квартиры

Волгоград,_Горячеводская_5

обмерный план квартиры

Волгоград,_Ленина_33

обмерный план квартиры

Волгоград,_Мира_20

обмерный план квартиры

Волгоград,_Ополченская_27Б

обмерный план квартиры

Волгоград,_Пархоменко_8_1 этаж

обмерный план квартиры

Волгоград,_Пархоменко_8_2 этаж

обмерный план квартиры

Волгоград,_Родниковая_66_

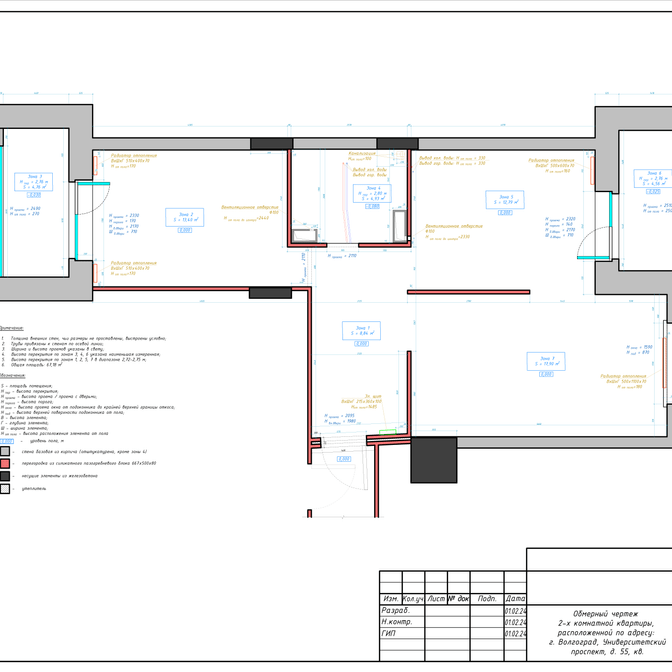
обмерный план квартиры

Волгоград,_Университетский_55

обмерный план квартиры

Волгоград,_Шауляйская_2а

обмерный план квартиры

Волжский_Труда_2а

обмерный план квартиры

Краснослободск_Голицына_117

обмерный план квартиры

Москва_Годовикова_11

обмерный план квартиры

Москва_Дубки_13

обмерный план квартиры

Москва_Красногрск_Игоря Мерлушкина_12

обмерный план квартиры

Москва_Люберцы_Гагарина_24к1

обмерный план квартиры

Москва_Пожарский пер_5А

Изображение
Отзывы клиентов
(все отзывы можно посмотреть на Авито по ссылке https://www.avito.ru/profile/rating)
Екатерина
Настоящий профессионал своего дела!
Экстренно обратилась за услугами обмерщика помещений и осталась очень довольна. Специалист показал себя настоящим профессионалом: быстро и качественно провел замеры, предоставил подробные и точные чертежи. Дополнительно выполнил фото и видеофиксацию объекта, что оказалось крайне полезным. Работа выполнена точно в срок, с вниманием к деталям и высоким уровнем ответственности. Большое спасибо за такую качественную работу! Однозначно рекомендую и буду обращаться снова.
Алексей
Всё было сделано оперативно, на следующий день уже были присланы результаты.
Андрей Манузин
Сделка состоялась · Обмер (замер) квартиры, дома и др. помещений. Все сделано оперативно и быстро!
Рена Алиева
Благодарю Сергея за качественную и ответственно сделанную работу. Можно смело доверять! Рекомендую.
Мария
Все отлично, работа выполнена в срок, соответствует заявленной, рекомендую
Анна
Благодарю Сергея за качественное оказание услуг. Точную и тщательную работу. Смело рекомендую!
Современные Интерьеры
Приятно было иметь дело с Сергеем, нужен был срочный замер квартиры в Волгограде, сделал все в кратчайшие сроки, на следующее утро после замера уже прислал все.
Ольга
Все прошло отлично, документы были готовы в тот же день! Крайне рекомендую!
Роман Александров
Я сам тату-мастер, поэтому требования у меня высокие. Выбрал студию и не пожалел.
ИП Стасько Ю.А.
Сергей все сделал качественно и в срок. Сразу озвучил сумму . В один день сделал полный замер помещения, а на сл день уже предоставил все данные , фото и чертежи.
Все супер, рекомендую !
Анастасия
Отлично выполненная работа, чётко, в срок.

Узнать стоимость

Волгоград, Волжский, Волгоградская область
КОНТАКТЫ